京都市上京区の売土地は
京都市の不動産専門の建都へ

本日の公開物件
653
本日の公開物件数3,824
  1. おススメ!売主物件特集 KENTOの自慢!情報充実の売主物件!
  2. 京都市のこだわり物件特集 京都に住むならこんなトコ!

  3. 京都市の物件トピック一覧 イイネがいっぱい!設備も充実!

  4. 京都市のエリア別物件一覧 住みたい場所から絞り込む♪

  5. 新着物件一覧 更新日:2021年02月17日
  6. オープンハウス予定一覧 「ちょっと見てみたい」もOKです♪
  7. お問い合わせ・内覧希望 京都市内の不動産なら何でもご質問ください!
トップページ京都市の土地京都市上京区御前通 建築条件付き
土地:建築条件付き 情報更新日:2021/07/20 次回更新予定日:2026/05/22

京都市上京区 御前通 2,400万円

TEL:075-493-2766 (北店)
印刷
資料請求
内覧予約
物件番号
185216
※お電話では物件番号をお伝えください♪
物件名
京都市上京区御前通 建築条件付き
所在地
京都府京都市上京区御前通
アクセス
  1. 【京福北野線】北野白梅町駅徒歩12分
  2. 【市バス北区】わら天神前バス停徒歩7分
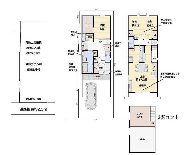
土地面積
94.29 m² (28.52坪)
坪単価
84.12万円
備考
*建築条件付
*建物価格:1780万円(外構費・建築確認申請費込)

京都市上京区御前通 建築条件付きの学区

翔鸞小学校
衣笠中学校
物件番号
185216
※お電話では物件番号をお伝えください♪
物件名
京都市上京区御前通 建築条件付き
所在地
京都府京都市上京区御前通
アクセス
  1. 【京福北野線】北野白梅町駅徒歩12分
  2. 【市バス北区】わら天神前バス停徒歩7分
物件価格
2,400万円
坪単価
84.12万円
建築条件
土地面積
94.29 m² (28.52坪)
私道面積
4.04 m² (1.22坪)
私道負担
無し
建蔽率
60%
容積率
200%
地目
宅地
接道
  • 南側 幅員約2.5 m の私道 に 約5.7 m 接面
都市計画
  • 市街化
用途地域
準工業地域
土地権利
所有権
取引態様
媒介
現況
更地
引渡時期
相談
設備
電気 / 上水道 / 下水道 / 都市ガス
その他備考
*建築条件付
*建物価格:1780万円(外構費・建築確認申請費込)

※掲載されている物件データが現状と異なる場合は現状を優先します。

※地図の場所は、おおよその場所です。実際の物件住所とは異なる場合があります。
TEL:075-493-2766 (北店)
印刷
資料請求
内覧予約

お問い合わせ・資料請求・内覧予約

物件名※必須
185216 : 京都市上京区御前通 建築条件付き
お名前※必須
フリガナ※必須
お電話番号※必須
-
-
郵便番号※必須
ご住所※必須
メールアドレス※必須
お問合せの種類※必須
資料のお届け方法※必須
ご希望日時※必須
お問合せ・ご相談内容※任意
利用規約※必須
個人情報の取扱いについて

弊社は積極的に個人情報保護に取り組んでおります。こちらのフォームにつきましても個人情報としてお取り扱いさせて頂きます。なお、フォームのご送信をもちまして個人情報のご提供にご同意いただいたものと理解させて頂きます。送り頂いた情報は以下の目的で使用させて頂きます。

  1. 不動産の売買、賃貸、仲介、管理等の取引に関する契約の履行、及び情報、サービスの提供。
  2. 上記1の利用目的の達成に必要な範囲での、個人情報の第三者への提供。
  3. 当社が取り扱う商品に関する契約の履行、情報、サービスの提供。
  4. 上記1、3の商品・情報・サービス提供のための郵便物、電話、電子メール等による営業活動、及びアンケートのお願い等のマーケティング活動。顧客動向分析または商品開発等の調査分析。
  5. 情報、サービスの提供は、ご本人からの申出がありましたら取り止めさせていただきます。

送信頂きました個人情報のお問い合わせまたは開示・訂正・削除のご請求は下記までご連絡ください。

建都住宅販売株式会社
TEL : 075-411-0700

※携帯電話の「ドメイン受信機能」を利用されている方は「kento.jp」をドメイン指定してください。セキュリティ設定をされていて、返信メールをお届けできない場合はお電話にてご連絡いたします。

閲覧履歴 閲覧履歴一覧を見る →

京都の不動産オープンハウス情報

京都の不動産オープンハウス情報

事前にご予約いただき、ご来場いただいたお客様にはもれなくQuoカード500円分(1家族様1枚限り)をプレゼンさせていただきます!

京都の不動産オープンハウス情報

オープンハウスでは、お家の設備や仕様を具体的にご確認いただけることはもちろん、WEBではわかりにくい立体的な情報をお伝えすることができます!また、オープンハウスのご予約をいただけますと、優先的に内覧していただけますのでゆったりご見学いただけますし、資金計画のご相談にもその場で対応させていただきます。

もちろんご見学いただいた物件だけではなく、今後ご希望に添える物件が出てきた時や、非公開の物件情報を優先的にご紹介させていただきますので「この物件ちょっと見てみたい」と思われましたら、ぜひお気軽にご予約ください♪

突然のご来店も大歓迎!お気軽にご相談ください! KENTOの店舗一覧

  1. 京都市左京区左京店

    左京店
    お気軽にお電話ください! TEL.075-711-5149

    〒606-8012
    京都市左京区山端 修学院離宮道上ル西側 (Googleマップはこちら→)

    ●叡山電鉄修学院駅より徒歩7分
    市バス修学院離宮道停より徒歩1分

    左京店の紹介ページへ→

  2. 京都市北区北店

    北店
    お気軽にお電話ください! TEL.075-493-2766

    〒603-8173
    京都市北区小山 下初音町14−1 (Googleマップはこちら→)

    ●地下鉄北大路駅より徒歩7分

    北店の紹介ページへ→

  3. 京都市上京区河原町今出川店

  4. 京都市上京区御所西店

    御所西店
    お気軽にお電話ください! TEL.075-415-0002

    〒602-8019
    京都市上京区今出川通 新町下ル西無車小路594番地1 (Googleマップはこちら→)

    ●地下鉄今出川駅より徒歩5分

    御所西店の紹介ページへ→

  5. 京都市右京区右京店

    右京店
    お気軽にお電話ください! TEL.075-811-5000

    〒615-0095
    京都市右京区葛野大路通 三条西入ル西八反田町9-11 (Googleマップはこちら→)

    ●地下鉄太秦天神川駅より徒歩9分

    右京店の紹介ページへ→

  6. 京都市西京区桂店

    桂店
    お気軽にお電話ください! TEL.075-391-6865

    〒615-8191
    京都市西京区川島 有栖川町18 (Googleマップはこちら→)

    ●阪急電車桂駅より徒歩7分

    桂店の紹介ページへ→

  7. 京都市山科区山科店

    山科店
    お気軽にお電話ください! TEL.075-593-2424

    〒607-8075
    京都市山科区音羽 野田町15-3 ファーストビル2F (Googleマップはこちら→)

    山科店の紹介ページへ→

  8. 京都市中京区四条店